Leave a Message

Thank you for your message. We will be in touch with you shortly.

Listed by Ada Steib with Vista Sotheby's International Realty 310-266-7177

1715 245

$1,050,000

1715 245, Lomita, CA 90717

Active Under Contract

MLS® ID: SB26071504

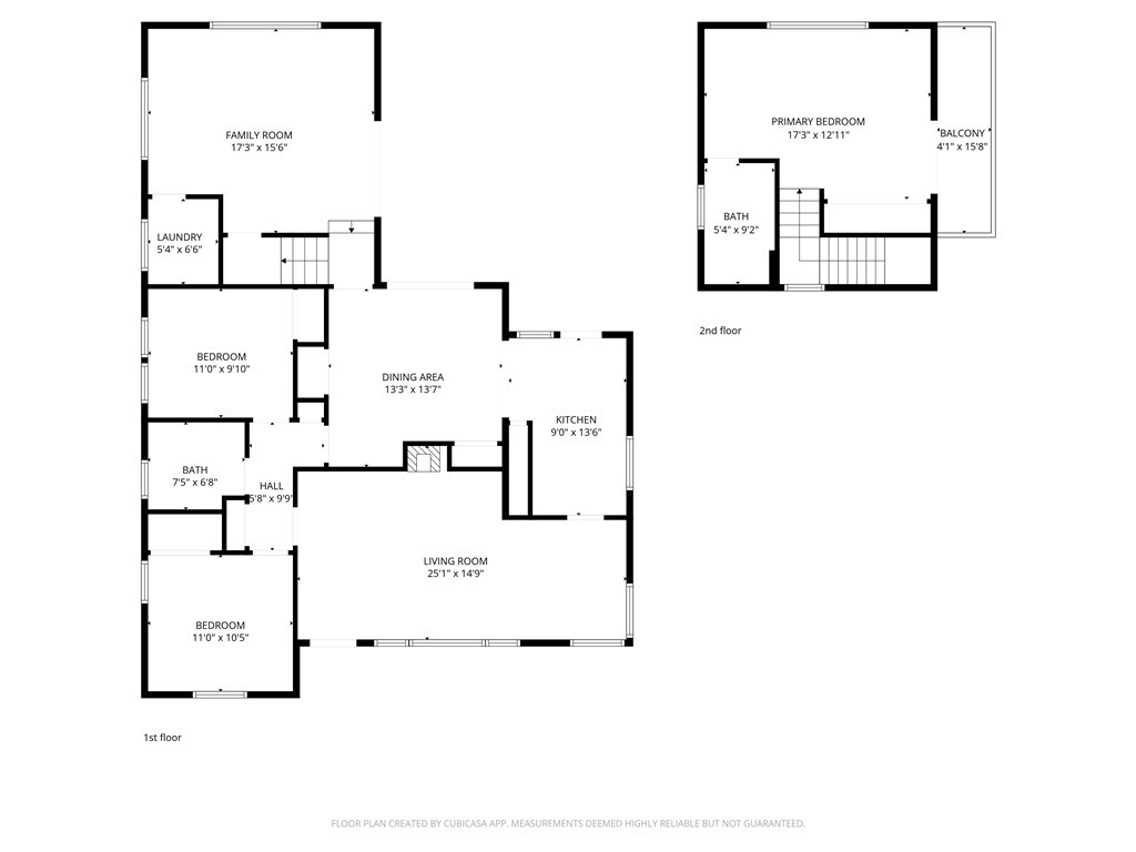
  • 3 BEDROOMS
  • 2 FULL BATHROOMS
  • 5,554 Sq.Ft.
  • 1,835 Sq.Ft.
  • 1952 BUILT

Property Details

This Mid_ century style home is perfect for anyone seeking a low-maintenance residence in a quiet, established neighborhood. Lomita offers easy access to local parks, shopping along Pacific Coast Highway, nearby beaches, and major freeways for commuting to Los Angeles or the South Bay. This home has been carefully maintained and was freshly painted . The low-maintenance flat roof, brick chimney, and tidy landscaping give you the opportunity to focus on living. The house is moving ready. Allow the Inviting front walkway to lead you into your next home!

Jaqueline Steib

LISTING AGENT

Amenities

Interior

  • total bedrooms 3
  • Total bathrooms 2
  • full bathrooms 2
  • Laundry room Laundry Room
  • Flooring Tile Wood
  • Fireplace Living Room
  • Appliances Gas Range Microwave
  • other interior Features Balcony Separate/Formal Dining Room Galley Kitchen

Exterior & Building

  • Stories 2
  • Garage Space 2.0
  • water Source Public
  • utilities Sewer Available Water Available
  • Pool None
  • roof Flat
  • lot features 0-1 Unit/Acre
  • parking Driveway Garage Faces Front
  • Air Conditioning None
  • sewer Public Sewer
  • Substructure Concrete Perimeter

Financial Details

  • Sales Price $1,050,000
  • Zoning LAR1

Area & Lot

  • Status Active Under Contract
  • Living Area 1,835 Sq.Ft.
  • Lot Area 5,554 Sq.Ft.
  • MLS® ID SB26071504
  • Type Residential
  • Year Built 1952
  • Neighborhood Torrance
  • Architecture Styles Mid-Century Modern
  • View Description Neighborhood
  • School District Los Angeles Unified
View Virtual Tour
1715 245

Work With Jaqueline

Every day I strive to be the best version of myself. I look forward to helping you reach your real estate goals, whether you are buying, selling, or looking for investment property I am just a text, email or phone call away.

Let's Connect